Meeting all your warehousing needs

Southwest Indiana Warehousing, LLC

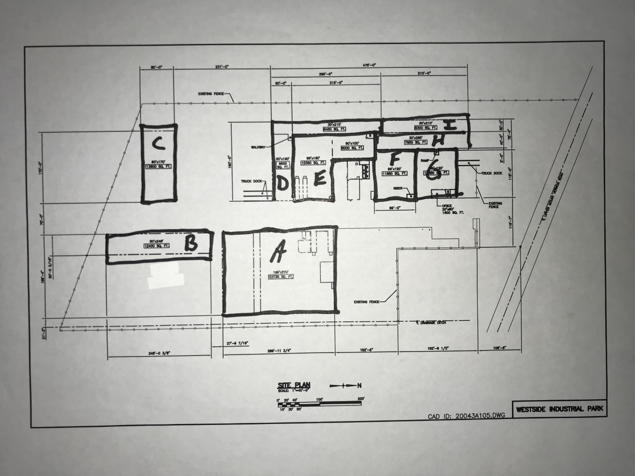
West Side Industrial Park - Evansville Warehouse

Site Map

NetObjects Fusion 2015